Добро пожаловать на http://vipplan.ru

Випплан Прохладный - это тысячи проектов домов в нашем каталоге!

Вы всегда сможете найти для себя проект дома вашей мечты! Даже если этого не случилось, мы готовы в любую минуту предложить проект индивидуального дома.

Забыли пароль?
Вы еще не регистрировались?

Перейдите по ссылке ниже на страницу регистрации.

Регистрация...

Внимание!!!

В проектную документацию могут быть внесены изменения любой сложности, в соответствии в Вашими пожеланиями!

Полезные статьи

Проект дома

Строительство дома начинается с подготовительного этапа, основной частью которого является проект. Разработка дизайнерского проекта сопровождается оформлением документов после выбора участка....

Выбор участка для строительства дома

Если вы решили приобрести участок земли и построить на нем дом или дачу. То данная статья специально для вас. А так же мы поможем вам в выборе проекта для выбранного вами участка....

Проекты домов и коттеджей > Каталог проектов домов > Проект одноэтажного дома с гаражом Vg2219

Проект одноэтажного дома с гаражом Vg2219

Проект одноэтажного дома с гаражом
Зарегистрируйтесь

Проект № Vg2219


Техническое описание
Общая площадь: 139.28 м2
Жилая площадь: 55.84 м2
Высота здания: 7.77 м
Размеры дома: 20.04м×10.54м
Кол-во комнат: 4
Цокольный этаж: нет
Гараж: нет
Мансарда: нет

Kонструкция
Фундамент: Ленточный
Перекрытия: Деревянные балки
Материал стен: Газобетон

Архитектурный раздел
Конструктивный раздел
АР+КР - 52 000 (Со скидкой 20%)
Проект индивидуального одноэтажного жилого дома с размерами здания 20,04x10,54 м. Наружная отделка здания – фасадная штукатурка. Фундамент – ленточный монолитный ж/б. Наружные стены – газобетонные блоки с отделкой фасадной штукатуркой. Внутренние стены – газобетонные блоки. Перегородки - кирпич рядовой. Пол 1 этажа - ж/б монолитное. ("теплый пол" в стяжке, кроме гаража) Чердачное перекрытие - по деревянным балкам с использованием теплошумоизоляционных материалов в межбалочном пространстве. Крыша многоскатная. Кровля – металлочерепица. Окна – металлопластиковые.
Генплан застройки участка / Паспорт проекта 7000 руб / 10000 руб
Инженерный раздел (полный) 69500 руб
Смета на строительство 34750 руб
Теплотехнический расчет материалов стен Бесплатно
Стоимость проекта со незначительнми изменениями 61500 руб
Стоимость проекта со средними изменениями* 72000 руб
Стоимость проекта со значительными изменениями** 74700 руб

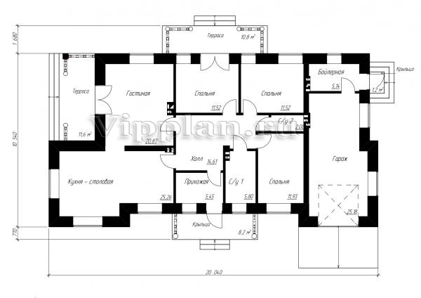
План первого этажа


Прихожая — 5,45 м2
Холл — 14,61 м2
Гостиная — 20,87 м2
Кухня-столовая — 25,26 м2
Спальня — 11,52 м2
Спальня — 11,52 м2
С/у — 5,8 м2
Спальня — 11,93 м2
Бойлерная — 5,14 м2
Гараж — 25,18 м2
Проект одноэтажного дома с гаражом Проект одноэтажного дома с гаражом Проект одноэтажного дома с гаражом Проект одноэтажного дома с гаражом

Модификации проектов

Внесение изменений и привязка к участку строительства

В любой из проектов от компании VIPplan - Прохладный по вашему желанию могут быть внесены изменения в материалы стен, материалы наружной отделки дома, а также будет произведена адаптация проекта под конкретный регион строительства (с учетом грунтов региона, геологических особенностей вашего участка и местных климатических условий) - БЕСПЛАТНО !!! (кроме проектов со скидкой и проектов наших партнеров).

Любой из проектов, размещенных на сайте prohladnyiy.vipplan.ru мы можем выполнить из требуемых вам строительных материалов: ячеистый бетон (газобетон, пеноблок), керамоблок, кирпич, шлакоблок, бетонный блок, дерево (брус, клееный брус), каркасная технология (деревянный каркас, металлокаркас (ЛСТК)).

Фасад дома и его наружную отделку так же возможно выполнить с применением различных облицовочных материалов: структурной штукатурки, (с утеплителем и без), сайдингом (пластиковый или металлосайдинг), фиброплитами, кирпича.

 
6 Избранные
проекты

Доставка проектов по России: Москва (Московская область), Санкт-Петербург (Ленинградская область), Краснодар, Ростов-на-Дону, Ставрополь, Сочи, Волгоград, Новосибирск, Белгород, Брянск, Воронеж, Саратов, Хабаровск, Астрахань, Нальчик, Владикавказ, Екатеринбург, Тюмень, Самара, Нижний Новгород, Казань, Пермь, Уфа, Челябинск, Красноярск, Ханты-Мансийск, Иркутск, Курган, Оренбург, Омск, Томск, Барнаул, Новокузнецк, Кемерово, Абакан, Чита, Якутск, Южно-Сахалинск, Петропавловск-Камчатский и страны ближнего зарубежья: Белоруссия, Украина, Казахстан