Добро пожаловать на http://vipplan.ru

Випплан Прохладный - это тысячи проектов домов в нашем каталоге!

Вы всегда сможете найти для себя проект дома вашей мечты! Даже если этого не случилось, мы готовы в любую минуту предложить проект индивидуального дома.

Забыли пароль?
Вы еще не регистрировались?

Перейдите по ссылке ниже на страницу регистрации.

Регистрация...

Внимание!!!

В проектную документацию могут быть внесены изменения любой сложности, в соответствии в Вашими пожеланиями!

Полезные статьи

Типы и разновидности кровли

Кровля состоит из сплошного настила, стяжки и обрешетки, поддерживающих стропила и несколько слоев изоляции, призванных уберечь кровельное пространство от негативного воздействия пара и влаги....

Выбор участка для строительства дома

Если вы решили приобрести участок земли и построить на нем дом или дачу. То данная статья специально для вас. А так же мы поможем вам в выборе проекта для выбранного вами участка....

Проекты домов и коттеджей > Каталог проектов домов > Проект просторного одноэтажного дома с мансардой, цоколем и гаражом Vg1288

Проект просторного одноэтажного дома с мансардой, цоколем и гаражом Vg1288

Проект просторного одноэтажного дома с мансардой, цоколем и гаражом
Зарегистрируйтесь

Проект № Vg1288


Техническое описание
Общая площадь: 354.58 м2
Жилая площадь: 108.08 м2
Высота здания: 9.56 м
Размеры дома: 17.08м×11.78м
Кол-во комнат: 5
Цокольный этаж: есть
Гараж: нет
Мансарда: есть

Kонструкция
Фундамент: Ленточный монолитный ж/б
Перекрытия: Сборные ж/б плиты
Материал стен: Кирпич

Архитектурный раздел
Конструктивный раздел
АР+КР - 92 000 (Со скидкой 20%)
Индивидуальный проект одноэтажного дома с мансардой и подвалом с размерами здания 17,08 x 11,78 м. Наружная отделка здания - облицовочный кирпич 2х цветов. Отделка вентканалов и дымоходов - облицовочный кирпич. Цоколь - отделка клинкерной плиткой. Фундамент - ленточный, монолитный, ж/б. Наружные стены: кирпич забутовочный, цементно-песчаный раствор, облицовочный кирпич. Внутренние стены и перегородки- из кирпича забутовочного. Перемычки монолитные и сварные из профиля проката. Отделка вентканалов и дымоходов - облицовочный кирпич. Пол первого этажа и межэтажное перекрытие - сборные ж/б плиты перекрытий. Потолок мансардного этажа - по затяжкам стропильной системы. Крыша многоскатная. Покрытие - металлочерепица. Лестница - деревянная, выполняется по индивидуальному заказу. Окна - металлопластиковые, выполненные по индивидуальному заказу.
Генплан застройки участка / Паспорт проекта 7000 руб / 10000 руб
Инженерный раздел (полный) 177500 руб
Смета на строительство 88750 руб
Теплотехнический расчет материалов стен Бесплатно
Стоимость проекта со незначительнми изменениями 106100 руб
Стоимость проекта со средними изменениями* 132800 руб
Стоимость проекта со значительными изменениями** 139900 руб

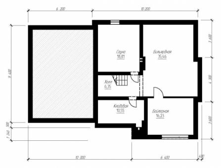
План цокольного этажа


Сауна — 18,81 кв м
Бойлерная — 16,23 кв м
Холл — 6,35 кв м
Бильярдная — 35,46 кв м
Кладовая — 10,55 кв м

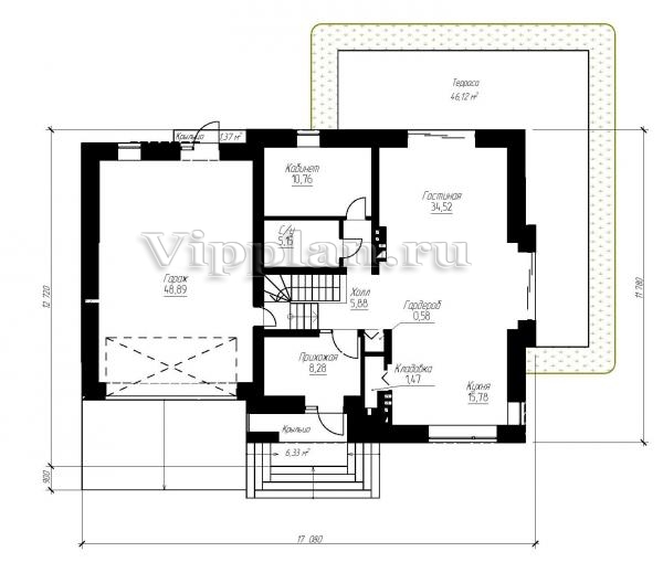
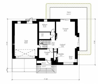
План первого этажа


Гараж — 48,89 кв м
Крыльцо — 1,37 кв м
Кабинет — 10,76 кв м
Гостиная — 34,52 кв м
Терраса — 46,12 кв м
Холл — 5,88 кв м
С/у — 5,15 кв м
Гардероб — 0,58 кв м
Кухня — 15,78 кв м
Кладовая — 1,47 кв м
Прихожая — 8,28 кв м
Крыльцо — 6,33 кв м

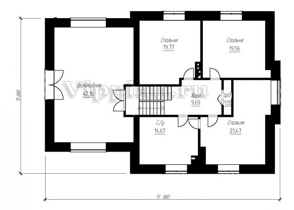
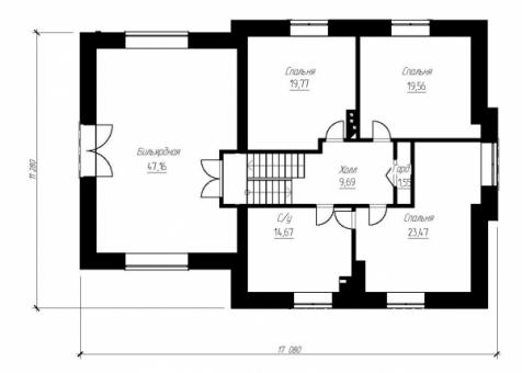
План мансардного этажа


Бильярдная — 47,16 кв м
Спальня — 19,77 кв м
С/у — 14,67 кв м
Холл — 9,69 кв м
Гардероб — 1,55 кв м
Спальня — 19,56 кв м
Спальня — 23,47 кв м
Проект просторного одноэтажного дома с мансардой, цоколем и гаражом Проект просторного одноэтажного дома с мансардой, цоколем и гаражом Проект просторного одноэтажного дома с мансардой, цоколем и гаражом Проект просторного одноэтажного дома с мансардой, цоколем и гаражом

Модификации проектов

Внесение изменений и привязка к участку строительства

В любой из проектов от компании VIPplan - Прохладный по вашему желанию могут быть внесены изменения в материалы стен, материалы наружной отделки дома, а также будет произведена адаптация проекта под конкретный регион строительства (с учетом грунтов региона, геологических особенностей вашего участка и местных климатических условий) - БЕСПЛАТНО !!! (кроме проектов со скидкой и проектов наших партнеров).

Любой из проектов, размещенных на сайте prohladnyiy.vipplan.ru мы можем выполнить из требуемых вам строительных материалов: ячеистый бетон (газобетон, пеноблок), керамоблок, кирпич, шлакоблок, бетонный блок, дерево (брус, клееный брус), каркасная технология (деревянный каркас, металлокаркас (ЛСТК)).

Фасад дома и его наружную отделку так же возможно выполнить с применением различных облицовочных материалов: структурной штукатурки, (с утеплителем и без), сайдингом (пластиковый или металлосайдинг), фиброплитами, кирпича.

 
6 Избранные
проекты

Доставка проектов по России: Москва (Московская область), Санкт-Петербург (Ленинградская область), Краснодар, Ростов-на-Дону, Ставрополь, Сочи, Волгоград, Новосибирск, Белгород, Брянск, Воронеж, Саратов, Хабаровск, Астрахань, Нальчик, Владикавказ, Екатеринбург, Тюмень, Самара, Нижний Новгород, Казань, Пермь, Уфа, Челябинск, Красноярск, Ханты-Мансийск, Иркутск, Курган, Оренбург, Омск, Томск, Барнаул, Новокузнецк, Кемерово, Абакан, Чита, Якутск, Южно-Сахалинск, Петропавловск-Камчатский и страны ближнего зарубежья: Белоруссия, Украина, Казахстан