Добро пожаловать на http://vipplan.ru

Випплан Прохладный - это тысячи проектов домов в нашем каталоге!

Вы всегда сможете найти для себя проект дома вашей мечты! Даже если этого не случилось, мы готовы в любую минуту предложить проект индивидуального дома.

Забыли пароль?
Вы еще не регистрировались?

Перейдите по ссылке ниже на страницу регистрации.

Регистрация...

Внимание!!!

В проектную документацию могут быть внесены изменения любой сложности, в соответствии в Вашими пожеланиями!

Полезные статьи

Купить готовый проект дома или заказать индивидуальный?

Перед началом строительства дома возникает необходимость в проекте дома и тут встает вопрос: Купить готовый проект дома или заказать индивидуальный на заказ? Каждый из вариантов по своему хорош и имеет как свои плюсы так и минусы...

Выбор проекта дома в Прохладном

Выбор проекта дома может завести семью в тупик. Прийти к одному конкретному мнению всем членам семьи очень сложно. Кому-то по душе, чтобы дом был большой и одноэтажный, с красивой террасой или верандой, кому-то хочется жить в двухэтажном доме с балконом. Детям, в основном, нравятся дома с мансардой....

Проекты домов и коттеджей > Каталог проектов домов > Двухэтажный дом с декоративным фахверком, террасой и 4 спальнями Vg1230

Двухэтажный дом с декоративным фахверком, террасой и 4 спальнями Vg1230

Двухэтажный дом с декоративным фахверком, террасой и 4 спальнями
Зарегистрируйтесь

Проект № Vg1230


Техническое описание
Общая площадь: 137.3 м2
Жилая площадь: 77.68 м2
Высота здания: 9.72 м
Размеры дома: 10.84м×13.24м
Кол-во комнат: 5
Цокольный этаж: нет
Гараж: нет
Мансарда: нет

Kонструкция
Фундамент: монолитная плита
Перекрытия: монолитные
Материал стен: material_mon

Архитектурный раздел
Конструктивный раздел
АР+КР - 52 000 (Со скидкой 20%)
Двухэтажный дом с декоративным фахверком, террасой и 4 спальнями с размерами здания 10,84 х 13,24 м. Фундамент - монолитная ж/б плита. Наружные стены здания - газобетонный блоки с утеплением минеральной ватой и отделкой клинкерной плиткой и штукатуркой. Внутренние стены здания - газобетонные блоки. Перегородки здания - газобетонные блоки. Пол этажа, чердачное перекрытие - монолитные ж/б плиты. Крыша - многоскатная. Кровля - металлочерепица. Окна — металлопластиковые.
Генплан застройки участка / Паспорт проекта 7000 руб / 10000 руб
Инженерный раздел (полный) 68500 руб
Смета на строительство 34250 руб
Теплотехнический расчет материалов стен Бесплатно
Стоимость проекта со незначительнми изменениями 61550 руб
Стоимость проекта со средними изменениями* 71900 руб
Стоимость проекта со значительными изменениями** 74600 руб

План первого этажа


Тамбур - 6,67 м2
Бойлерная - 5,29 м2
Холл - 8,01 м2
Гостиная - 21,25 м2
Кухня - 12,19 м2
С/у - 5,28 м2
Спальня - 11,26 м2

Двухэтажный дом с декоративным фахверком, террасой и 4 спальнями

Двухэтажный дом с декоративным фахверком, террасой и 4 спальнями

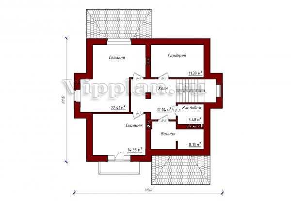
План второго этажа


Холл - 8,22 м2
Спальня - 12,22 м2
Гардероб - 4,32 м2
Спальня - 21,05 м2
Спальня - 11,90 м2
Гардероб -3,20 м2
Ванная - 6,44 м2

План мансардного этажа



Двухэтажный дом с декоративным фахверком, террасой и 4 спальнями Двухэтажный дом с декоративным фахверком, террасой и 4 спальнями Двухэтажный дом с декоративным фахверком, террасой и 4 спальнями Двухэтажный дом с декоративным фахверком, террасой и 4 спальнями

Модификации проектов

Внесение изменений и привязка к участку строительства

В любой из проектов от компании VIPplan - Прохладный по вашему желанию могут быть внесены изменения в материалы стен, материалы наружной отделки дома, а также будет произведена адаптация проекта под конкретный регион строительства (с учетом грунтов региона, геологических особенностей вашего участка и местных климатических условий) - БЕСПЛАТНО !!! (кроме проектов со скидкой и проектов наших партнеров).

Любой из проектов, размещенных на сайте prohladnyiy.vipplan.ru мы можем выполнить из требуемых вам строительных материалов: ячеистый бетон (газобетон, пеноблок), керамоблок, кирпич, шлакоблок, бетонный блок, дерево (брус, клееный брус), каркасная технология (деревянный каркас, металлокаркас (ЛСТК)).

Фасад дома и его наружную отделку так же возможно выполнить с применением различных облицовочных материалов: структурной штукатурки, (с утеплителем и без), сайдингом (пластиковый или металлосайдинг), фиброплитами, кирпича.

 
6 Избранные
проекты

Доставка проектов по России: Москва (Московская область), Санкт-Петербург (Ленинградская область), Краснодар, Ростов-на-Дону, Ставрополь, Сочи, Волгоград, Новосибирск, Белгород, Брянск, Воронеж, Саратов, Хабаровск, Астрахань, Нальчик, Владикавказ, Екатеринбург, Тюмень, Самара, Нижний Новгород, Казань, Пермь, Уфа, Челябинск, Красноярск, Ханты-Мансийск, Иркутск, Курган, Оренбург, Омск, Томск, Барнаул, Новокузнецк, Кемерово, Абакан, Чита, Якутск, Южно-Сахалинск, Петропавловск-Камчатский и страны ближнего зарубежья: Белоруссия, Украина, Казахстан